唐山市体育中心将新建气膜运动馆!
唐山信息港 发表于:2025-5-17 22:48 复制链接 看图 发表新帖
阅读数:7484
3322c0adc8799879015bf547b09ebd12.png
0858c92df805feaf010b22d6a58c5d7c.png
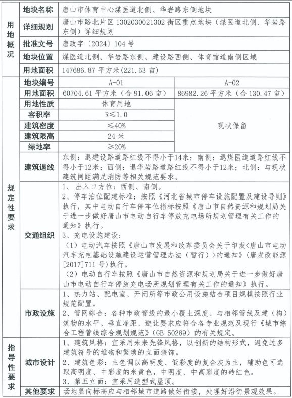
地块名称:唐山市体育中心煤医道北侧、华岩路东侧地块
详细规划:唐山市路北片区1302030021302街区重点地块(煤医道北侧、华岩路东侧)详细规划
地块位置:煤医道北侧、华岩路东侧、建设路西侧、体育馆道南侧区域
用地面积:147686.87平方米(221.53 亩)
e7cd827de1321fe9de4bf8897ea17bc3.png
2fc61e7d9b2b491d686158ebfaad1ff8.png
用地性质:体育用地
建筑层数:1层
建设规模:总建筑面积23319.49㎡,其中现状建筑面积19806.88㎡,拟新建3512.61㎡
建筑高度:18米(拟建最高)
容积率:0.384
4591754f45240506735b0c06274f8ee9.png
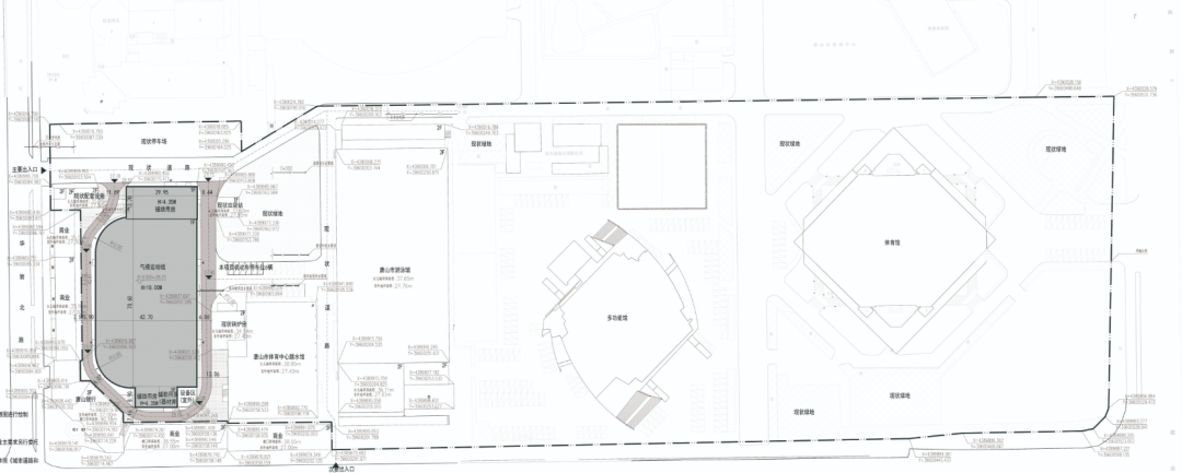
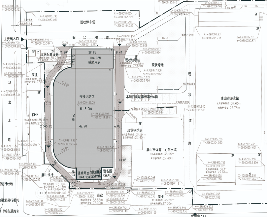
新建项目建筑面积明细表
总建筑面积:3512. 61㎡
气膜运动馆:建筑面积2943. 88㎡,占地面积2943. 88㎡,计容面积2943. 88㎡
辅助用房:建筑面积568.73㎡,占地面积568.73㎡,计容面积568.73㎡
72f18443c766493d97365b02b16725ba.png
87401e7a2d28d844ee7ab3ef2ac80c1d.png
9ac51b7197382bbde9ec6d40a14f6239.png
01db92ecfe674bbe3c2234edb499c834.png
416b6ef2776b798cf1249b548f1ef6a2.png
来源:唐山市自然资源和规划局
返回列表 使用道具 举报
条评论
您需要登录后才可以回帖 登录 | 立即注册
相关推荐
©2001-2021 唐山信息港 http://www.tsxxg.com冀ICP备16001780号-4
首页联系我们客服微信:14369595Comsenz Inc.
bdall.peaapk.com xtrb.peaapk.com hdwxxg.peaapk.com qhdceo.peaapk.com tsxxg.peaapk.com lyshangdu.peaapk.com hsrb.peaapk.com lanfxx.peaapk.com chengdenews.peaapk.com szyongdian.peaapk.com dtnews.peaapk.com yqnews.peaapk.com changzhinews.peaapk.com jcnews.peaapk.com sxjzxww.peaapk.com sxycrb.peaapk.com lfxww.peaapk.com sxllnews.peaapk.com nmgnews.peaapk.com baotounews.peaapk.com tlsxxg.peaapk.com bynesrmtzx.peaapk.com shenyangx.peaapk.com dlxxgs.peaapk.com northtimes.peaapk.com jilin.peaapk.com ccxxg.peaapk.com 0437.peaapk.com ybrbnews.peaapk.com avapk