唐山老花卉市场将建天泽苑小区
唐山信息港 发表于:2025-4-21 23:05 复制链接 看图 发表新帖
阅读数:4292
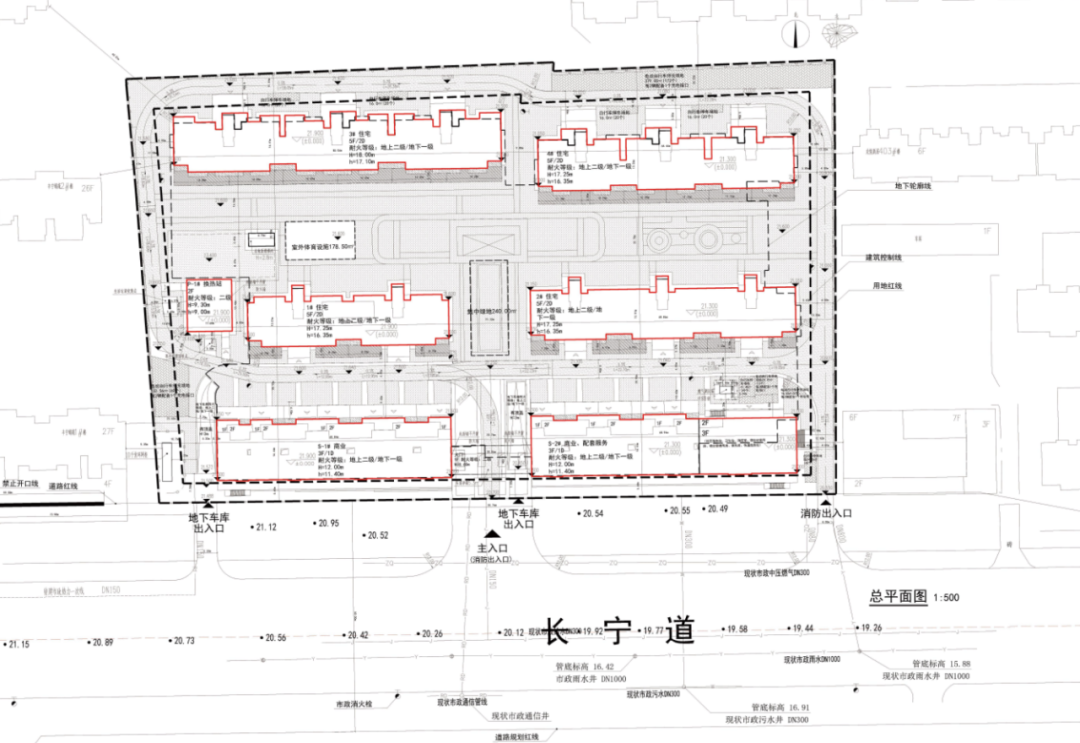
唐山市自然资源和规划局(林业局)
发布建筑项目规划公示
(天泽苑项目)
8b2e9dcfa88149af1d0875060d2ffb61.png
087101112213646d87ad014d19be083b.png
21bbc64c89a723f8fdda9b128fcbad52.png
建设项目名称:天泽苑项目
建设项目位置:唐山市路北区长宁道33号
建设规模:总建筑面积39634.98㎡,地上建筑面积22477.7㎡,地下建筑面积17157.28㎡
建设层数:5层
建设高度:18米
5f63d3429a841757f17324b6e4406677.png
返回列表 使用道具 举报
条评论
您需要登录后才可以回帖 登录 | 立即注册
相关推荐
©2001-2021 唐山信息港 http://www.tsxxg.com冀ICP备16001780号-4
首页联系我们客服微信:14369595Comsenz Inc.
bdall.peaapk.com xtrb.peaapk.com hdwxxg.peaapk.com qhdceo.peaapk.com tsxxg.peaapk.com lyshangdu.peaapk.com hsrb.peaapk.com lanfxx.peaapk.com chengdenews.peaapk.com szyongdian.peaapk.com dtnews.peaapk.com yqnews.peaapk.com changzhinews.peaapk.com jcnews.peaapk.com sxjzxww.peaapk.com sxycrb.peaapk.com lfxww.peaapk.com sxllnews.peaapk.com nmgnews.peaapk.com baotounews.peaapk.com tlsxxg.peaapk.com bynesrmtzx.peaapk.com shenyangx.peaapk.com dlxxgs.peaapk.com northtimes.peaapk.com jilin.peaapk.com ccxxg.peaapk.com 0437.peaapk.com ybrbnews.peaapk.com avapk