唐山市中心区天华苑项目规划公示
唐山信息港 发表于:2025-1-25 22:40 复制链接 看图 发表新帖
阅读数:9381
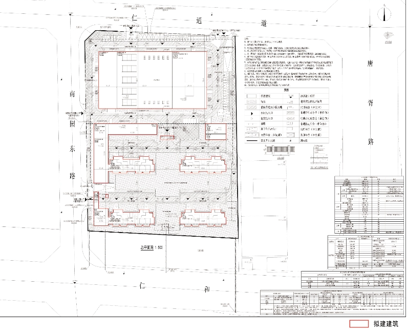
       近日,唐山市自然资源和规划局发布《建设项目规划公示(天华苑项目)》
19394b58e548586b2dc27eccca238cbd.jpg
       建设位置:唐山市路北区仁和道北侧、唐胥路西侧、南园东路东侧、仁通道南侧区域
       建设规模:总建筑面积86298.19㎡;地上建筑面积62280.58㎡;地下建筑面积24017.61㎡
       建设层数:16层建设高度:52.5米
a931efbe0519016ea1c58bd1481976aa.png
来源:唐山自然资源和规划局
返回列表 使用道具 举报
条评论
您需要登录后才可以回帖 登录 | 立即注册
相关推荐
©2001-2021 唐山信息港 http://www.tsxxg.com冀ICP备16001780号-4
首页联系我们客服微信:14369595Comsenz Inc.
bdall.peaapk.com xtrb.peaapk.com hdwxxg.peaapk.com qhdceo.peaapk.com tsxxg.peaapk.com lyshangdu.peaapk.com hsrb.peaapk.com lanfxx.peaapk.com chengdenews.peaapk.com szyongdian.peaapk.com dtnews.peaapk.com yqnews.peaapk.com changzhinews.peaapk.com jcnews.peaapk.com sxjzxww.peaapk.com sxycrb.peaapk.com lfxww.peaapk.com sxllnews.peaapk.com nmgnews.peaapk.com baotounews.peaapk.com tlsxxg.peaapk.com bynesrmtzx.peaapk.com shenyangx.peaapk.com dlxxgs.peaapk.com northtimes.peaapk.com jilin.peaapk.com ccxxg.peaapk.com 0437.peaapk.com ybrbnews.peaapk.com avapk