唐山路南区发布文旅南湖后街A-01地块项目公示
唐山信息港 发表于:2024-6-28 23:01 复制链接 看图 发表新帖
阅读数:5999
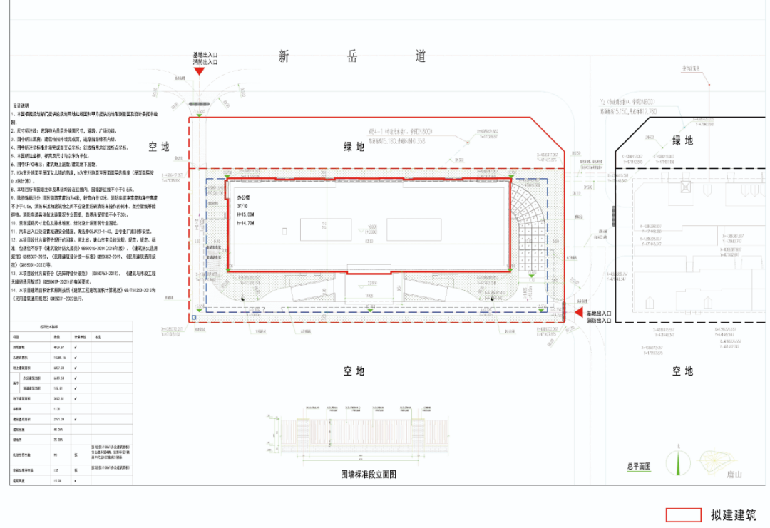
6月28日路南区人民政府官网公示文旅南湖后街A-01地块项目
2d40a04afe3d16fe7218aa0663b5efd5.png
b6ce19d84bced318b6f7e96e4f33f29a.png
c473883c632d6fc398db612dca6c7ab7.png
854ba8f57e78543428cb0d1179c2381a.png

来源:路南区人民政府
返回列表 使用道具 举报
条评论
您需要登录后才可以回帖 登录 | 立即注册
相关推荐
©2001-2021 唐山信息港 http://www.tsxxg.com冀ICP备16001780号-4
首页联系我们客服微信:14369595Comsenz Inc.
bdall.peaapk.com xtrb.peaapk.com hdwxxg.peaapk.com qhdceo.peaapk.com tsxxg.peaapk.com lyshangdu.peaapk.com hsrb.peaapk.com lanfxx.peaapk.com chengdenews.peaapk.com szyongdian.peaapk.com dtnews.peaapk.com yqnews.peaapk.com changzhinews.peaapk.com jcnews.peaapk.com sxjzxww.peaapk.com sxycrb.peaapk.com lfxww.peaapk.com sxllnews.peaapk.com nmgnews.peaapk.com baotounews.peaapk.com tlsxxg.peaapk.com bynesrmtzx.peaapk.com shenyangx.peaapk.com dlxxgs.peaapk.com northtimes.peaapk.com jilin.peaapk.com ccxxg.peaapk.com 0437.peaapk.com ybrbnews.peaapk.com avapk