路南区城南经济开发区公示10层建筑
唐山信息港 发表于:2023-4-1 21:14 复制链接 看图 发表新帖
阅读数:5075
b19f2c4c68b6da56aedad47fdfae0662.png
9a3e43c1ab6a769929e856f8e8036f85.png
a3fcc5b14077f77fce4e44e07d904e83.png
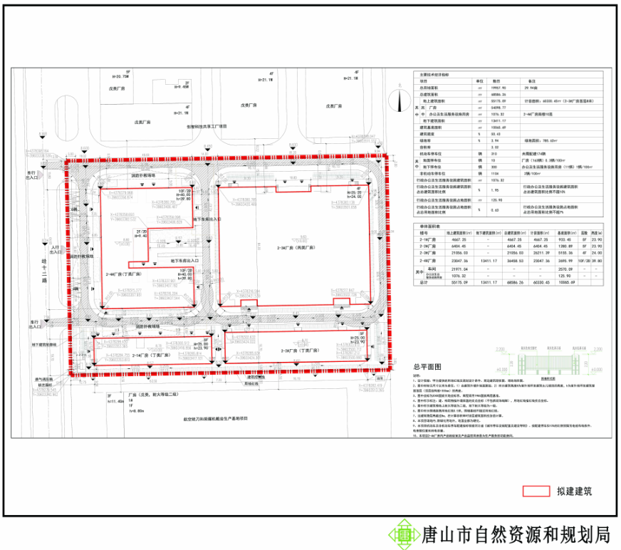
建设项目名称:城南经济开发区配套基础设施建设项目(配套服务设施工程)
建设规模:总建筑面积:68586.26㎡
地下建筑面积:13411.17㎡
建设高度:40米
公示时间:2023年3月31日-2023年4月9日
来源:路南区人民政府官网
返回列表 使用道具 举报
条评论
您需要登录后才可以回帖 登录 | 立即注册
相关推荐
©2001-2021 唐山信息港 http://www.tsxxg.com冀ICP备16001780号-4
首页联系我们客服微信:14369595Comsenz Inc.
bdall.peaapk.com xtrb.peaapk.com hdwxxg.peaapk.com qhdceo.peaapk.com tsxxg.peaapk.com lyshangdu.peaapk.com hsrb.peaapk.com lanfxx.peaapk.com chengdenews.peaapk.com szyongdian.peaapk.com dtnews.peaapk.com yqnews.peaapk.com changzhinews.peaapk.com jcnews.peaapk.com sxjzxww.peaapk.com sxycrb.peaapk.com lfxww.peaapk.com sxllnews.peaapk.com nmgnews.peaapk.com baotounews.peaapk.com tlsxxg.peaapk.com bynesrmtzx.peaapk.com shenyangx.peaapk.com dlxxgs.peaapk.com northtimes.peaapk.com jilin.peaapk.com ccxxg.peaapk.com 0437.peaapk.com ybrbnews.peaapk.com avapk