路南区大里路西福兴道北则顺歆颐大厦项目批前公示
唐山信息港 发表于:2022-9-2 09:06 复制链接 看图 发表新帖
阅读数:7216

9月1日,中国唐山网站发布了《顺歆颐大厦项目批前公示》,详情如下:

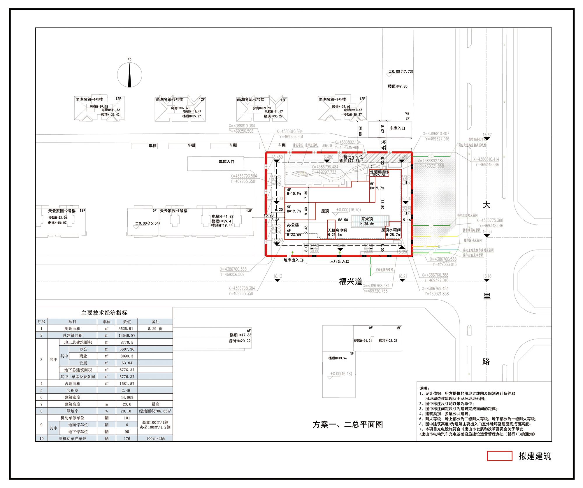
顺歆颐大厦项目批前公示

50121152_6932aec7-71e6-4118-8a2b-69850533cd73copy.jpg

50121152_62c745bf-ff91-40f6-8094-0b3e36432e3ccopy.jpg

50121152_53949f5d-c822-46c4-a04b-adc5dffb8010copy.jpg

来源: 中国唐山
返回列表 使用道具 举报
条评论
您需要登录后才可以回帖 登录 | 立即注册
相关推荐
©2001-2021 唐山信息港 http://www.tsxxg.com冀ICP备16001780号-4
首页联系我们客服微信:14369595Comsenz Inc.
bdall.peaapk.com xtrb.peaapk.com hdwxxg.peaapk.com qhdceo.peaapk.com tsxxg.peaapk.com lyshangdu.peaapk.com hsrb.peaapk.com lanfxx.peaapk.com chengdenews.peaapk.com szyongdian.peaapk.com dtnews.peaapk.com yqnews.peaapk.com changzhinews.peaapk.com jcnews.peaapk.com sxjzxww.peaapk.com sxycrb.peaapk.com lfxww.peaapk.com sxllnews.peaapk.com nmgnews.peaapk.com baotounews.peaapk.com tlsxxg.peaapk.com bynesrmtzx.peaapk.com shenyangx.peaapk.com dlxxgs.peaapk.com northtimes.peaapk.com jilin.peaapk.com ccxxg.peaapk.com 0437.peaapk.com ybrbnews.peaapk.com avapk