唐山冶金矿山机械厂A-01地块 A-02地块幼儿园项目公示
唐山信息港 发表于:2022-7-29 19:02 复制链接 看图 发表新帖
阅读数:5255

建设项目规划公示

(唐山冶金矿山机械厂A-01地块 A-02地块幼儿园项目)

50114417_1ce661a3-b00e-452d-8c00-0a280585b0decopy.jpg

50114417_a6108f96-0225-4368-9612-5f247a20a5f6copy.jpg

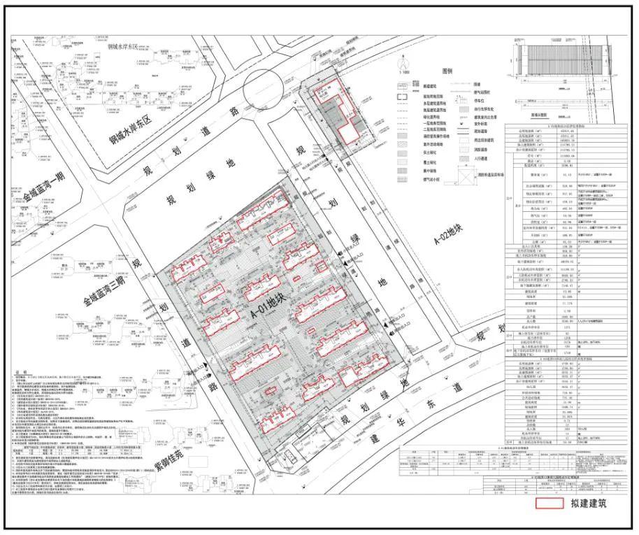
建设单位名称:唐山金隅盾石大成房地产开发有限公司

建设项目名称:

唐山冶金矿山机械厂A-01地块

唐山冶金矿山机械厂A-02地块幼儿园项目

建设项目位置:路北区缸窑路西侧、建华东道北侧

建设规模:

总建筑面积162825.76(A-01)㎡

3355.17(A-02幼儿园)㎡

地上建筑面积:

114786.15(A-01)㎡

3355.17(A-02幼儿园)㎡

地下建筑面积:

48039.61(A-01)㎡

0(A-02幼儿园)㎡

建设层数:

18(A-01)层

3(A-02幼儿园)层

建设高度:

53.85(A-01)米

11.9(A-02幼儿园)米

公示期:2022年7月28日至2022年8月7日

返回列表 使用道具 举报
条评论
您需要登录后才可以回帖 登录 | 立即注册
相关推荐
©2001-2021 唐山信息港 http://www.tsxxg.com冀ICP备16001780号-4
首页联系我们客服微信:14369595Comsenz Inc.
bdall.peaapk.com xtrb.peaapk.com hdwxxg.peaapk.com qhdceo.peaapk.com tsxxg.peaapk.com lyshangdu.peaapk.com hsrb.peaapk.com lanfxx.peaapk.com chengdenews.peaapk.com szyongdian.peaapk.com dtnews.peaapk.com yqnews.peaapk.com changzhinews.peaapk.com jcnews.peaapk.com sxjzxww.peaapk.com sxycrb.peaapk.com lfxww.peaapk.com sxllnews.peaapk.com nmgnews.peaapk.com baotounews.peaapk.com tlsxxg.peaapk.com bynesrmtzx.peaapk.com shenyangx.peaapk.com dlxxgs.peaapk.com northtimes.peaapk.com jilin.peaapk.com ccxxg.peaapk.com 0437.peaapk.com ybrbnews.peaapk.com avapk