唐山市西外环花卉市场项目规划启动公示
唐山信息港 发表于:2022-7-8 07:31 复制链接 看图 发表新帖
阅读数:4448
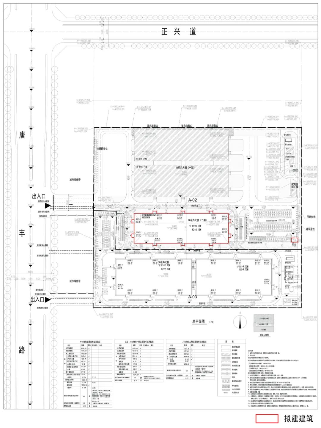
北京晟日投资有限公司唐山市西外环花卉市场项目A-02地块二期建设项目规划公示
d0c388d441ba56ed1601fd4490320e02.jpg
aed2b0abf9abae235796ba4812cd501a.jpg
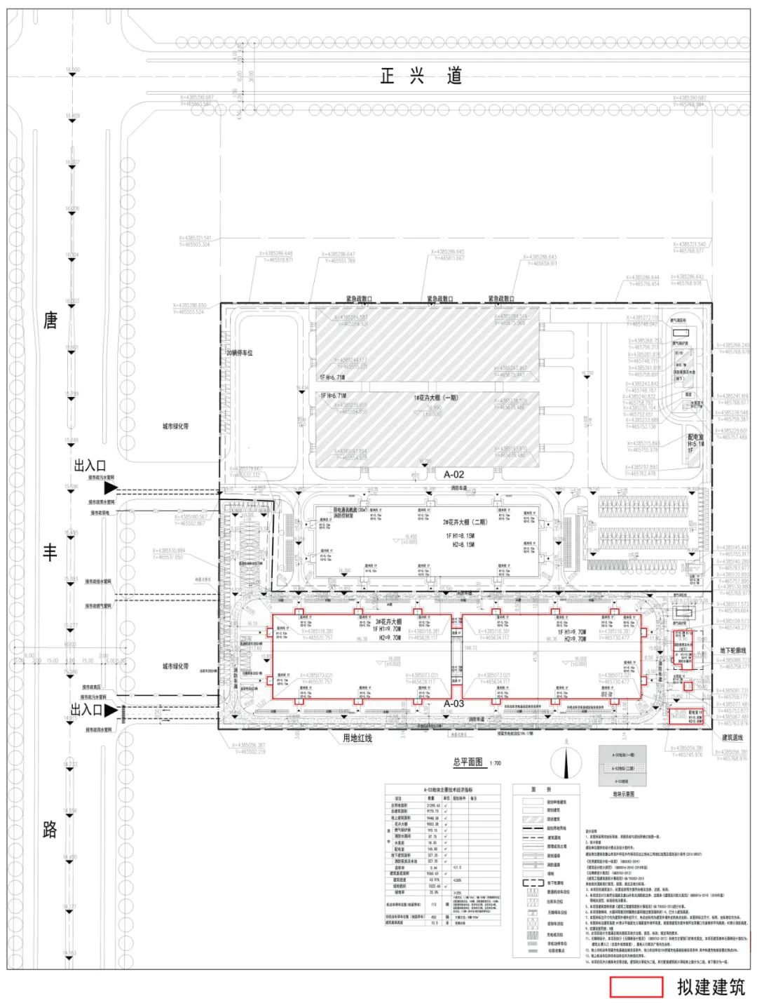
北京晟日投资有限公司唐山市西外环花卉市场项目A-03地块建设项目规划公示
85279b3109a4c48c83a02a7f74dd54c8.jpg
3cd212c8d59e578b0be8ce56dbfbb210.jpg
来源 | 中国唐山
返回列表 使用道具 举报
条评论
您需要登录后才可以回帖 登录 | 立即注册
相关推荐
©2001-2021 唐山信息港 http://www.tsxxg.com冀ICP备16001780号-4
首页联系我们客服微信:14369595Comsenz Inc.
bdall.peaapk.com xtrb.peaapk.com hdwxxg.peaapk.com qhdceo.peaapk.com tsxxg.peaapk.com lyshangdu.peaapk.com hsrb.peaapk.com lanfxx.peaapk.com chengdenews.peaapk.com szyongdian.peaapk.com dtnews.peaapk.com yqnews.peaapk.com changzhinews.peaapk.com jcnews.peaapk.com sxjzxww.peaapk.com sxycrb.peaapk.com lfxww.peaapk.com sxllnews.peaapk.com nmgnews.peaapk.com baotounews.peaapk.com tlsxxg.peaapk.com bynesrmtzx.peaapk.com shenyangx.peaapk.com dlxxgs.peaapk.com northtimes.peaapk.com jilin.peaapk.com ccxxg.peaapk.com 0437.peaapk.com ybrbnews.peaapk.com avapk