唐山工人医院(一期项目)规划公示
唐山信息港 发表于:2022-5-17 19:16 复制链接 看图 发表新帖
阅读数:3952

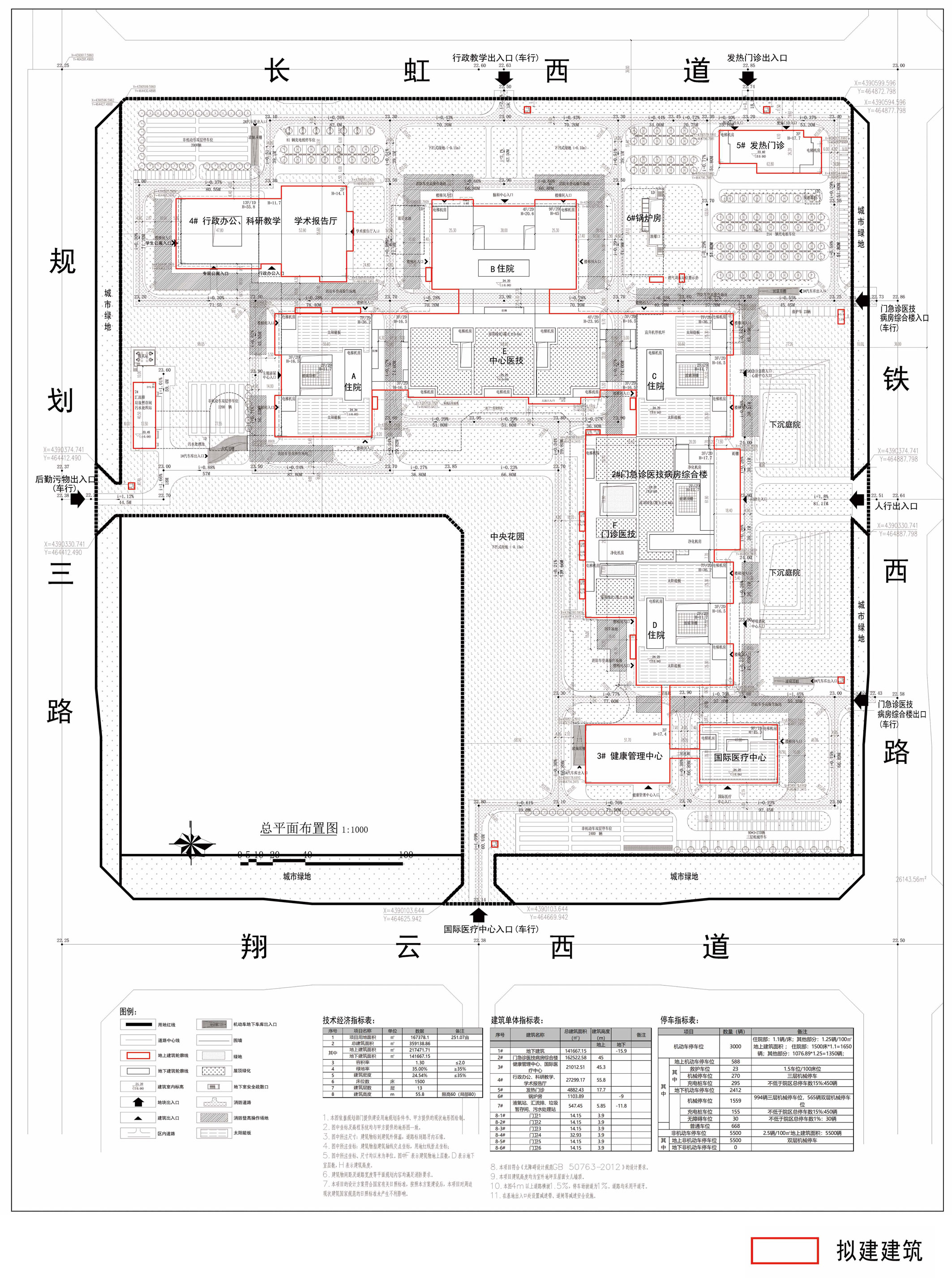
5月17日,中国唐山网站发布了《唐山工人医院(一期项目)批前公示》,详情如下:

唐山工人医院(一期项目)批前公示

50105048_ac3ff4b2-ebcc-4f3e-bb54-be92325753cccopy.jpg

50105048_634f5bd9-35e3-4550-9700-9688919d2f75copy.jpg

50105048_10aa6200-63aa-492a-8cf8-683b43de5a31copy.jpg

返回列表 使用道具 举报
条评论
您需要登录后才可以回帖 登录 | 立即注册
相关推荐
©2001-2021 唐山信息港 http://www.tsxxg.com冀ICP备16001780号-4
首页联系我们客服微信:14369595Comsenz Inc.
bdall.peaapk.com xtrb.peaapk.com hdwxxg.peaapk.com qhdceo.peaapk.com tsxxg.peaapk.com lyshangdu.peaapk.com hsrb.peaapk.com lanfxx.peaapk.com chengdenews.peaapk.com szyongdian.peaapk.com dtnews.peaapk.com yqnews.peaapk.com changzhinews.peaapk.com jcnews.peaapk.com sxjzxww.peaapk.com sxycrb.peaapk.com lfxww.peaapk.com sxllnews.peaapk.com nmgnews.peaapk.com baotounews.peaapk.com tlsxxg.peaapk.com bynesrmtzx.peaapk.com shenyangx.peaapk.com dlxxgs.peaapk.com northtimes.peaapk.com jilin.peaapk.com ccxxg.peaapk.com 0437.peaapk.com ybrbnews.peaapk.com avapk