唐山丰润区银城铺要这样规划:两心、三轴、两廊、多组团!
唐山信息港 发表于:2020-10-27 21:55 复制链接 看图 发表新帖
阅读数:6059
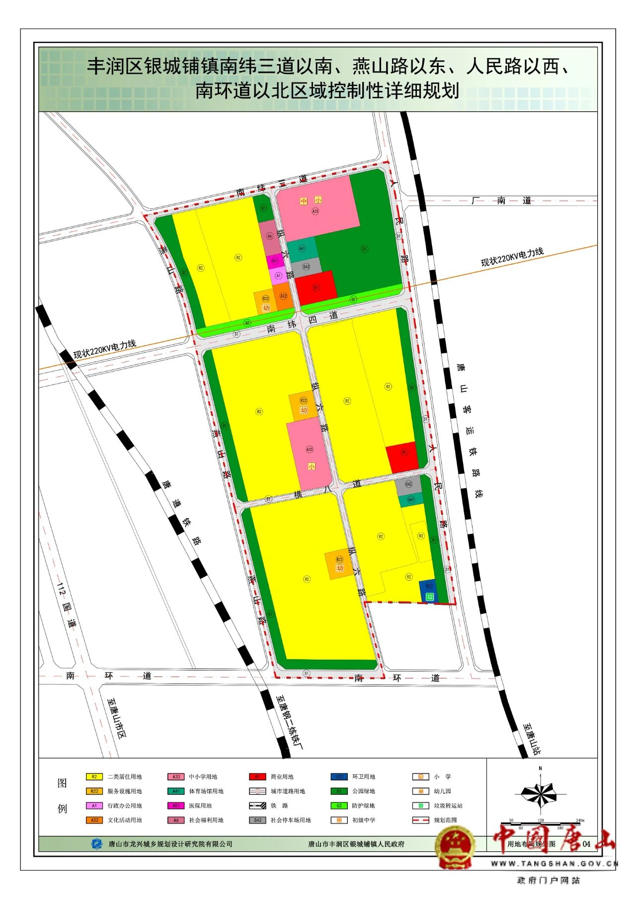
       10月27日,中国唐山网站发布《丰润区银城铺镇南纬三道以南、燕山路以东、人民路以西、南环道以北区域控制性详细规划成果公示》,公示显示,该规划主要功能布局为“两心、三轴、两廊、多组团”,涉及总面积达91.72公顷。详情如下:

       丰润区银城铺镇南纬三道以南、燕山路以东、人民路以西、南环道以北区域控制性详细规划成果公示
fde681af9f343760976f1662cc4cde27.jpg
13acdb05a451171ef03b7b2901913445.jpg
c6f68a927172b2c28c85de8c66742d87.jpg
5f29150447aee8c7c2c6a1b2b5f6b2cf.jpg
申请单位:唐山市丰润区银城铺镇人民政府
编制原因:为优化城市功能结构,改善城市环境,提升城市品质,打造城市近郊型高品质生态宜居社区,突出该区域城市的特色,特编制本区域控制性详细规划方案。
编制依据:《中华人民共和国城乡规划法》《城市、镇控制性详细规划编制审批办法》《河北省城乡规划条例》《河北省城市控制性详细规划管理办法(试行)》《唐山市城乡规划条例》等其他相关法律法规。
规划范围:本项目位于河北省唐山市丰润区银城铺镇,规划范围为规划南纬三道以南,规划南环道以北,规划燕山路以东,规划人民路以西,总面积91.72公顷。
规划主要内容:
规划结构:综合考虑规划区与周边区域环境的协调关系,实现路网结构、绿地系统、空间环境的有机联系,形成“两心、三轴、两廊、多组团”的功能布局结构。
两心:综合服务中心——在规划区北部规划包括街道综合服务、文化活动、基础教育、体育运动、社区医院、养老服务、商业和集中公园等公共服务设施,打造成服务规划区及其周边区域的综合服务中心。
绿地中心——在规划区北部规划的一处集中公园绿地,打造成兼具游憩、环境美化、减灾避难等功能,且能开展休闲、体育活动的居住区公园。
三轴:生活发展轴——以规划的南纬四道、纵六路和横八道三条城市道路,为规划区内社区生活发展轴线,与其他城市道路贯通,将整个规划区的居住与各类生活服务功能紧密衔接,实现居民步行15分钟就可享受各类公共服务。
两廊:景观绿廊——结合规划燕山路、人民路与居住用地间的绿化带,在居住与交通空间中打造两条别具特色的景观绿化廊道。
多组团:多个生活组团——依据规划道路系统,由北向南共形成五个生活组团。
规划区的道路系统形成“四横三纵”的方格网状道路网络格局。
“四横”:规划形成南纬三道、南纬四道、横八道、南环道四条横向道路。
“三纵”:规划形成燕山路、人民路、纵六路三条纵向道路。
       城市主干路是城市交通的骨架,是规划区与外界区域联系的主要通道,其中人民路和南纬四道与居住用地紧密联系,兼有交通性和生活性的综合性功能,其中人民路同时为规划区重要的景观路。南环道为丰润经开区南部外环道路,为交通性主干道路,主要承载区域性交通运输功能,规划道路红线宽度40-50米。
       城市次干路一般以交通功能为主,但多兼有地区服务功能,配合主干路共同组成干道网。其中燕山路兼有交通性与生活性功能,可与丰润城区直接相连,同时也是规划区内重要的景观路,南纬三道为连接两条主干路的生活性道路,规划道路红线宽度30米。
       城市支路是规划区内部的道路,以生活性服务功能为主,起补充完善规划区道路网的作用,同时解决局部地段的交通联系,规划区内包括横八道和纵六路,规划道路红线宽度20米。
编制单位:唐山市龙兴城乡规划设计研究院有限公司
公示单位:唐山市丰润区人民政府
公示地点:
1、唐山市丰润区人民政府网站
2、丰润区银城铺镇人民政府公示栏
3、唐山市城市规划展览馆
意见反馈:
       1.若您需对该规划方案发表意见,应在意见反馈期限届满前向唐山市自然资源和规划局丰润区分局提交书面意见,同时提供身份证明材料、联系方式。书面意见可当面提交也可通过邮寄方式提交。以邮寄方式提交的,请在信封正面注明“公示反馈意见”字样,提交时间以邮局收件邮戳载明的时间为准。
       2.若您为该规划方案的利害关系人,在提交书面意见时,还应该提供规划方案直接涉及您利益的证明材料。
       3.意见反馈期限截止至公示期满。
通讯地址:唐山市丰润区新兴路4号
邮政编码:063021
联系电话:0315-5256855
邮箱:kpghfjgsina.com

来源:中国唐山网站
返回列表 使用道具 举报
条评论
您需要登录后才可以回帖 登录 | 立即注册
相关推荐
©2001-2021 唐山信息港 http://www.tsxxg.com冀ICP备16001780号-4
首页联系我们客服微信:14369595Comsenz Inc.
bdall.peaapk.com xtrb.peaapk.com hdwxxg.peaapk.com qhdceo.peaapk.com tsxxg.peaapk.com lyshangdu.peaapk.com hsrb.peaapk.com lanfxx.peaapk.com chengdenews.peaapk.com szyongdian.peaapk.com dtnews.peaapk.com yqnews.peaapk.com changzhinews.peaapk.com jcnews.peaapk.com sxjzxww.peaapk.com sxycrb.peaapk.com lfxww.peaapk.com sxllnews.peaapk.com nmgnews.peaapk.com baotounews.peaapk.com tlsxxg.peaapk.com bynesrmtzx.peaapk.com shenyangx.peaapk.com dlxxgs.peaapk.com northtimes.peaapk.com jilin.peaapk.com ccxxg.peaapk.com 0437.peaapk.com ybrbnews.peaapk.com avapk