唐山市路南区公布金属小白楼区域改造
唐山信息港 发表于:2020-10-5 18:11 复制链接 看图 发表新帖
阅读数:3719
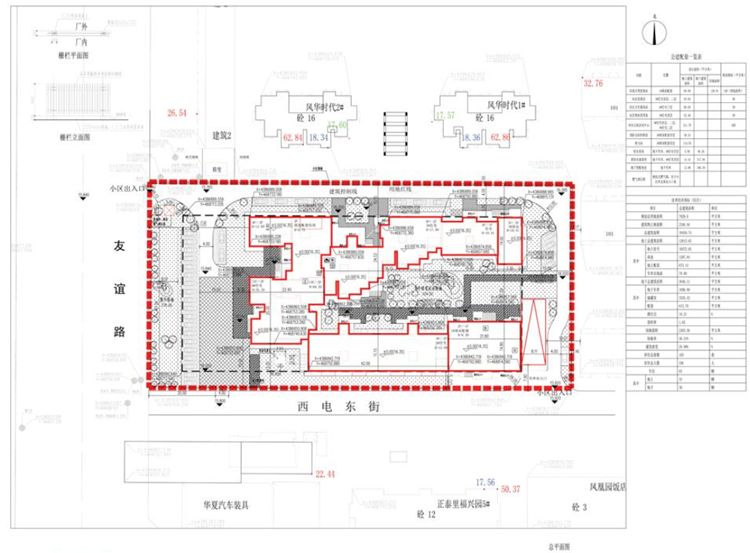
  日前,路南区人民政府发布《唐山市金属小白楼区域改造批后公布》,内容涉及项目建筑面积、层数、高度等。详情如下:
  建设项目名称:唐山市金属小白楼区域改造
  建设位置:南新道南侧,西电路东侧,风华时代小区南侧
  总建筑面积:18459.74平方米
  地上建筑面积:12613.63平方米
  地下建筑面积:5846.11平方米
  建筑层数:14层
  建筑高度:44.20米
12229612_297665.png
12229613_642497.png
12229614_991951.png
返回列表 使用道具 举报
条评论
您需要登录后才可以回帖 登录 | 立即注册
相关推荐
©2001-2021 唐山信息港 http://www.tsxxg.com冀ICP备16001780号-4
首页联系我们客服微信:14369595Comsenz Inc.
bdall.peaapk.com xtrb.peaapk.com hdwxxg.peaapk.com qhdceo.peaapk.com tsxxg.peaapk.com lyshangdu.peaapk.com hsrb.peaapk.com lanfxx.peaapk.com chengdenews.peaapk.com szyongdian.peaapk.com dtnews.peaapk.com yqnews.peaapk.com changzhinews.peaapk.com jcnews.peaapk.com sxjzxww.peaapk.com sxycrb.peaapk.com lfxww.peaapk.com sxllnews.peaapk.com nmgnews.peaapk.com baotounews.peaapk.com tlsxxg.peaapk.com bynesrmtzx.peaapk.com shenyangx.peaapk.com dlxxgs.peaapk.com northtimes.peaapk.com jilin.peaapk.com ccxxg.peaapk.com 0437.peaapk.com ybrbnews.peaapk.com avapk