唐山市城乡规划!中心区这个地块有变!
唐山信息港 发表于:2019-1-23 06:56 复制链接 看图 发表新帖
阅读数:5990
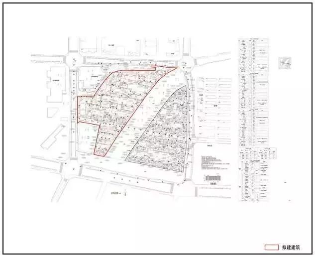
1月22日,唐山市城乡规划局网站发布了文化路南延段以东、南新道以北A-01地块方案变更公示。公示显示,该工程的总建筑面积(包括地上建筑面积和地下建筑面积)、建设层数、建设高度等发生变更。总建筑面积从184187.01平方米减少到178003.66平方米,建设层数由20层变为18层,建设高度从59.5米降至54.3米。

详情如下
唐山文化路南延段以东、南新道以北A-01地块方案变更公示



02cd7f63ff645d7c35277a1c065510f4.jpg

c16cf7098ecf81d6858954f86940e733.jpg

c0262b9679c36835ff8bec9b22b77752.jpg

相关新闻
2018年5月25日,唐山市城乡规划局网站发布了文化路南延段以东、南新道以北A-01地块项目批前公示,原公示内容如下

文化路南延段以东、南新道以北A-01地块项目批前公示



a62c18a9939180b625e818eed4f2ca17.jpg

febcd4cca4f30f298614cab336c8c2ba.jpg

6e666bddc8a612e9b7d03f0871b31214.jpg
返回列表 使用道具 举报
条评论
您需要登录后才可以回帖 登录 | 立即注册
相关推荐
©2001-2021 唐山信息港 http://www.tsxxg.com冀ICP备16001780号-4
首页联系我们客服微信:14369595Comsenz Inc.
bdall.peaapk.com xtrb.peaapk.com hdwxxg.peaapk.com qhdceo.peaapk.com tsxxg.peaapk.com lyshangdu.peaapk.com hsrb.peaapk.com lanfxx.peaapk.com chengdenews.peaapk.com szyongdian.peaapk.com dtnews.peaapk.com yqnews.peaapk.com changzhinews.peaapk.com jcnews.peaapk.com sxjzxww.peaapk.com sxycrb.peaapk.com lfxww.peaapk.com sxllnews.peaapk.com nmgnews.peaapk.com baotounews.peaapk.com tlsxxg.peaapk.com bynesrmtzx.peaapk.com shenyangx.peaapk.com dlxxgs.peaapk.com northtimes.peaapk.com jilin.peaapk.com ccxxg.peaapk.com 0437.peaapk.com ybrbnews.peaapk.com avapk