唐山海关要在市中心区建这些项目!地点就在这个小区里!
唐山信息港 发表于:2018-12-14 06:56 复制链接 看图 发表新帖
阅读数:5646
5e8a99292f3853b617b62e9ea39a301e.jpg
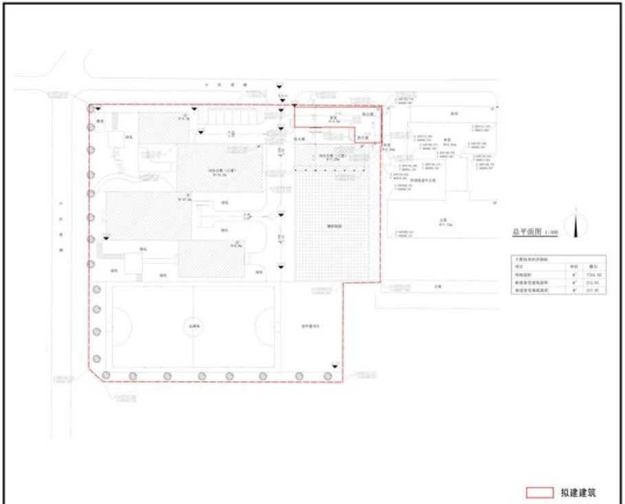
12月11日,据唐山市城乡规划局网站消息,唐山海关附属用房等建设项目现正批前公示,该项目建设地点位于路南区双新里小区内。
详情如下:↓↓↓      

1d58360f5db476c7edb63d5f2129527f.jpg

55640e6a7199010e5586f572e3174161.jpg

编号:唐规路南批前公示第[2018]017号

我局已依法对唐山海关罚没仓库、单身集体宿舍等附属用房项目——食堂项目建设工程设计方案(修建性详细规划)进行审查,相关技术指标符合国家规范标准要求。依据《唐山市城乡规划条例》第五十三条规定,现将有关情况予以公示。公示期间,相关利害关系人可将对该项目建设工程设计方案(修建性详细规划)的意见和建议反馈至唐山市城乡规划局,利害关系人享有要求举行听证的权利。

联系电话:0315-2819635

来源:环渤海新闻网

返回列表 使用道具 举报
条评论
您需要登录后才可以回帖 登录 | 立即注册
相关推荐
©2001-2021 唐山信息港 http://www.tsxxg.com冀ICP备16001780号-4
首页联系我们客服微信:14369595Comsenz Inc.
bdall.peaapk.com xtrb.peaapk.com hdwxxg.peaapk.com qhdceo.peaapk.com tsxxg.peaapk.com lyshangdu.peaapk.com hsrb.peaapk.com lanfxx.peaapk.com chengdenews.peaapk.com szyongdian.peaapk.com dtnews.peaapk.com yqnews.peaapk.com changzhinews.peaapk.com jcnews.peaapk.com sxjzxww.peaapk.com sxycrb.peaapk.com lfxww.peaapk.com sxllnews.peaapk.com nmgnews.peaapk.com baotounews.peaapk.com tlsxxg.peaapk.com bynesrmtzx.peaapk.com shenyangx.peaapk.com dlxxgs.peaapk.com northtimes.peaapk.com jilin.peaapk.com ccxxg.peaapk.com 0437.peaapk.com ybrbnews.peaapk.com avapk